Skip To Content

TBD SW 20TH Place

Ocala, FL 34471
  • $5,000,000
  • STATUS: Active
  • ON SITE: 8 Days
  • MLS #: A4670301
UPDATED: 107 min ago
$5,000,000
  • 0
    BEDS
  • 22
    ACRES
  • 0
    BATHS
  • 0
    1/2 BATHS
Type:
Vacant Land / Lots
County:
Area:

School Information

Elementary School:
Middle School:
High School:

Description

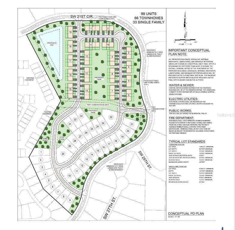
Nestled in the heart of Ocala, Willow Creek at Cala Hills presents an exceptional opportunity for residential development within one of the area's most desirable established communities. This 22-acre site is fully entitled and ready for the next phase of growth, with city water and sewer already to the property and an HOA in place. The approved site plan offers flexibility for a mix of 66 townhomes and 33 single- family homes, or alternatively, 68 single-family homesallowing developers to tailor the product mix to meet market demand. The property benefits from existing community infrastructure, attractive surrounding neighborhoods, and convenient access to major corridors, employment centers, and retail amenities. With survey and site plan in hand, Willow Creek at Cala Hills offers a rare "plug- and-play" opportunity for builders or investors seeking a prime infill development site in the core of Ocala's rapid residential expansion zone. Ocala & Marion County Growth Highlights Top Growth Market: Ocala ranks among Florida's Top 10 Fastest-Growing Metros and has been recognized by the U.S. Census Bureau for its consistent population and job growth. Population Surge: Marion County's population exceeds 400,000 and continues to grow at over 2% annually, fueled by in-migration from across the U.S. Strong Employment Base: Anchored by healthcare, logistics, and advanced manufacturing, Ocala is home to major employers like FedEx, Chewy, Amazon, Cardinal LG, and Reilly Arts Center's expanding cultural hub. Connectivity: Centrally located within 90 minutes of Orlando,

Monthly Payment Calculator




© 2025 My Florida Regional MLS DBA Stellar MLS. All rights reserved. All listings displayed pursuant to IDX. All listing information is deemed reliable but not guaranteed and should be independently verified through personal inspection by appropriate professionals. Listings displayed on this website may be subject to prior sale or removal from sale; availability of any listing should always be independently verified. Listing information is provided for consumers personal, non-commercial use, solely to identify potential properties for potential purchase; all other use is strictly prohibited and may violate relevant federal and state law. Data last updated 2025-11-07T23:44:30.473.
www.thekkg.com/homes/169401819
Print Image

TBD SW 20TH Place Ocala, FL 34471

  • Price: $5,000,000
  • Status: Active
  • On Site: 8 Days
  • Updated: 107 min ago
  • MLS #: A4670301
0
Beds
0
Baths
0
½ Baths
22
Acres
Neighborhood:
White Oak Village Ph 01 & Ph 02
County:
Marion
Area:
Ocala
Elementary School:
Saddlewood Elementary School
Middle School:
Liberty Middle School
High School:
West Port High School
Property Description
Nestled in the heart of Ocala, Willow Creek at Cala Hills presents an exceptional opportunity for residential development within one of the area's most desirable established communities. This 22-acre site is fully entitled and ready for the next phase of growth, with city water and sewer already to the property and an HOA in place. The approved site plan offers flexibility for a mix of 66 townhomes and 33 single- family homes, or alternatively, 68 single-family homesallowing developers to tailor the product mix to meet market demand. The property benefits from existing community infrastructure, attractive surrounding neighborhoods, and convenient access to major corridors, employment centers, and retail amenities. With survey and site plan in hand, Willow Creek at Cala Hills offers a rare "plug- and-play" opportunity for builders or investors seeking a prime infill development site in the core of Ocala's rapid residential expansion zone. Ocala & Marion County Growth Highlights Top Growth Market: Ocala ranks among Florida's Top 10 Fastest-Growing Metros and has been recognized by the U.S. Census Bureau for its consistent population and job growth. Population Surge: Marion County's population exceeds 400,000 and continues to grow at over 2% annually, fueled by in-migration from across the U.S. Strong Employment Base: Anchored by healthcare, logistics, and advanced manufacturing, Ocala is home to major employers like FedEx, Chewy, Amazon, Cardinal LG, and Reilly Arts Center's expanding cultural hub. Connectivity: Centrally located within 90 minutes of Orlando,
Exterior Features

Lot Features BuildableStreet Lights Lot Size Dimensions 514 x 577 x 691 x 1054/ 592 x 691 x 2562 Road Frontage Type Street LightsStreet PavedCity Street Road Surface Type PavedAsphalt Water Access Yn No Water Extras Yn No Water View Yn No Waterfront Feet Total 0 Waterfront Yn No

Interior Features

Sewer Public Sewer Water Source Public

Property Features

Association Fee 112 Association Fee Frequency Monthly Association Fee Monthly Amount 112 Association Fee Requirement Required Association Yn Yes Current Use Residential Flood Zone Code X For Lease Yn No Listing Terms CashConventionalOwner May Carry Ownership Fee Simple Pets Allowed Yes Planned Unit Development Yn Yes Realtor Info Brochure AvailableDocs AvailableNo SignOwner Will Consider financingSee AttachmentsSubject to Approval Special Listing Conditions None Tax Annual Amount 5230.83 Total Annual Fees 1544 Total Monthly Fees 128.67 Utilities BB/HS Internet AvailableCable AvailableElectricity AvailableNatural Gas AvailablePhone AvailablePublicSewer AvailableStreet LightsUnderground UtilitiesWater Available Zoning PD


Listing information © 2025 My Florida Regional MLS DBA Stellar MLS..
Listing provided courtesy of COMPASS FLORIDA LLC: 941-279-3630.



© 2025 My Florida Regional MLS DBA Stellar MLS. All rights reserved. All listings displayed pursuant to IDX. All listing information is deemed reliable but not guaranteed and should be independently verified through personal inspection by appropriate professionals. Listings displayed on this website may be subject to prior sale or removal from sale; availability of any listing should always be independently verified. Listing information is provided for consumers personal, non-commercial use, solely to identify potential properties for potential purchase; all other use is strictly prohibited and may violate relevant federal and state law. Data last updated 2025-11-07T23:44:30.473.
 
https://bt-photos.global.ssl.fastly.net/mfr/orig_boomver_1_A4670301-2.jpg https://bt-photos.global.ssl.fastly.net/mfr/orig_boomver_1_A4670301-2.jpg https://bt-photos.global.ssl.fastly.net/mfr/orig_boomver_1_A4670301-2.jpg
Logo
The Kilene Kelly Group | Keller Williams Suburban Tampa
2350 East SR 60, Suite #150
Valrico FL, 33594