Skip To Content

1393 Zesty Citrus Lane

Minneola, FL 34715
  • $899,000
  • STATUS: Active
  • ON SITE: 16 Days
  • MLS #: O6362906
UPDATED: 140 min ago
$899,000
  • 4
    BEDS
  • 0.14
    ACRES
  • 4
    BATHS
  • 0
    1/2 BATHS
  • 3,108
    SQFT
  • $289
    $/SQFT
Neighborhood:
Type:
Single-Family Home
Built:
2025
County:
Area:

School Ratings & Info

Description

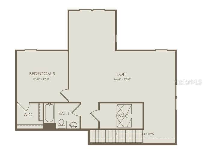
Del Webb at Minneola is a luxurious guard-gated 55+ active adult community offering new construction single-family homes in an unrivaled location on one of the highest peaks in Central Florida. Del Webb Minneola will offer an abundance of resort-style amenities with social events and activities planned by a full-time Lifestyle Director - centered in the stunning clubhouse which offers views of Sugarloaf Mountain. Planned community amenities include a zero-entry resort-style pool, in-ground heated spa, sports courts, on-site bar & grille with indoor and outdoor seating, a fitness center and walking/biking trails. Monthly HOA includes 1 GB high-speed internet, 75 streaming channels and your home's yard maintenance. Visit today to learn more and see for yourself why Del Webb Minneola is the absolute best place to call home! Experience the perfect blend of luxury and convenience with this brand-new, ready-to-move-in Mystique Grand home by Pulte. This two-story home offers a thoughtfully designed layout featuring 4 bedrooms, an enclosed flex room, 4 bathrooms, and a 2-car garage. The owner's suite is conveniently located on the first floor, offering a private retreat with a spa-inspired en suite bathroom. The heart of the home is the open-concept kitchen, caf, and gathering room, where natural light floods the space, creating a welcoming and airy atmosphere. Tall ceilings, expansive windows, and a pocket sliding glass door leading to the screened-in extended covered lanai and outdoor kitchen seamlessly blend the indoor and outdoor living areas, ideal for effortless entertaining. The gourmet kitchen is a true highlight, featuring built-in Whirlpool appliances including a natural gas cooktop, 42" soft-close cabinetry with clear glass uppers, quartz countertops, and a decorative tile backsplash. A spacious walk-in pantry, upgraded faucet, and stainless-steel single-bowl sink completes this culinary space, which is both stylish and functional. The owner's suite is designed for relaxation, with an en suite bathroom that includes a frameless glass enclosed shower, garden tub, dual vanity with quartz countertops, a linen closet, and an enclosed toilet for added privacy. On the first floor, you'll also find 2 spare bedrooms and 2 bathrooms (one of which is an en suite) and an enclosed flex room that can easily serve as an office, hobby room, or guest retreat. Upstairs, the expansive loft provides additional space for leisure, and the third bedroom features its own walk-in closet and private bathroom. Throughout the home, designer-curated finishes enhance the sense of luxury, including comfort height toilets, brushed nickel hardware and plumbing fixtures, garage floor epoxy finish, crown molding in the main living areas, and under cabinet lighting in the kitchen. The entire home is outfitted with beautiful tile, with the exception of the loft, stairs, and upstairs bedroom, which are complemented by plush, stain-resistant Shaw brand carpet. This home is also equipped with the latest in-home technology, including a smart thermostat, video doorbell, LED downlights, digital IP camera pre-wire, electric car plug-in, retractable hose central vacuum package, surround sound speakers, and garage lighting package. Don't miss the opportunity to own this beautifully designed home with unparalleled functionality and elegance. Schedule your tour today!

Monthly Payment Calculator




© 2025 My Florida Regional MLS DBA Stellar MLS. All rights reserved. All listings displayed pursuant to IDX. All listing information is deemed reliable but not guaranteed and should be independently verified through personal inspection by appropriate professionals. Listings displayed on this website may be subject to prior sale or removal from sale; availability of any listing should always be independently verified. Listing information is provided for consumers personal, non-commercial use, solely to identify potential properties for potential purchase; all other use is strictly prohibited and may violate relevant federal and state law. Data last updated 2025-12-12T23:44:25.307.
www.thekkg.com/homes/170934090
Print Image

1393 Zesty Citrus Lane Minneola, FL 34715

  • Price: $899,000
  • Status: Active
  • On Site: 16 Days
  • Updated: 140 min ago
  • MLS #: O6362906
4
Beds
4
Baths
0
½ Baths
0.14
Acres
3,108
SQFT
$289
$/SQFT
2025
Built
Neighborhood:
Del Webb Minneola
County:
Lake
Area:
Minneola
Property Description
Del Webb at Minneola is a luxurious guard-gated 55+ active adult community offering new construction single-family homes in an unrivaled location on one of the highest peaks in Central Florida. Del Webb Minneola will offer an abundance of resort-style amenities with social events and activities planned by a full-time Lifestyle Director - centered in the stunning clubhouse which offers views of Sugarloaf Mountain. Planned community amenities include a zero-entry resort-style pool, in-ground heated spa, sports courts, on-site bar & grille with indoor and outdoor seating, a fitness center and walking/biking trails. Monthly HOA includes 1 GB high-speed internet, 75 streaming channels and your home's yard maintenance. Visit today to learn more and see for yourself why Del Webb Minneola is the absolute best place to call home! Experience the perfect blend of luxury and convenience with this brand-new, ready-to-move-in Mystique Grand home by Pulte. This two-story home offers a thoughtfully designed layout featuring 4 bedrooms, an enclosed flex room, 4 bathrooms, and a 2-car garage. The owner's suite is conveniently located on the first floor, offering a private retreat with a spa-inspired en suite bathroom. The heart of the home is the open-concept kitchen, caf, and gathering room, where natural light floods the space, creating a welcoming and airy atmosphere. Tall ceilings, expansive windows, and a pocket sliding glass door leading to the screened-in extended covered lanai and outdoor kitchen seamlessly blend the indoor and outdoor living areas, ideal for effortless entertaining. The gourmet kitchen is a true highlight, featuring built-in Whirlpool appliances including a natural gas cooktop, 42" soft-close cabinetry with clear glass uppers, quartz countertops, and a decorative tile backsplash. A spacious walk-in pantry, upgraded faucet, and stainless-steel single-bowl sink completes this culinary space, which is both stylish and functional. The owner's suite is designed for relaxation, with an en suite bathroom that includes a frameless glass enclosed shower, garden tub, dual vanity with quartz countertops, a linen closet, and an enclosed toilet for added privacy. On the first floor, you'll also find 2 spare bedrooms and 2 bathrooms (one of which is an en suite) and an enclosed flex room that can easily serve as an office, hobby room, or guest retreat. Upstairs, the expansive loft provides additional space for leisure, and the third bedroom features its own walk-in closet and private bathroom. Throughout the home, designer-curated finishes enhance the sense of luxury, including comfort height toilets, brushed nickel hardware and plumbing fixtures, garage floor epoxy finish, crown molding in the main living areas, and under cabinet lighting in the kitchen. The entire home is outfitted with beautiful tile, with the exception of the loft, stairs, and upstairs bedroom, which are complemented by plush, stain-resistant Shaw brand carpet. This home is also equipped with the latest in-home technology, including a smart thermostat, video doorbell, LED downlights, digital IP camera pre-wire, electric car plug-in, retractable hose central vacuum package, surround sound speakers, and garage lighting package. Don't miss the opportunity to own this beautifully designed home with unparalleled functionality and elegance. Schedule your tour today!
Exterior Features

Architectural Style FloridaMediterranean Attached Garage Yn Yes Carport Yn No Construction Materials BlockHardiPlank TypeStuccoWood Frame Covered Spaces 2 Direction Faces Northwest Exterior Features Irrigation SystemLightingOutdoor KitchenRain GuttersSidewalkSliding Doors Foundation Details Slab Garage Dimensions 19x20 Green Landscaping Fl. Friendly/Native Landscape Lot Features ClearedLandscapedSidewalk Open Parking YN Yes Other Structures Outdoor Kitchen Parking Features DrivewayGarage Door Opener Patio And Porch Features CoveredRear Porch Pool Private Yn No Road Frontage Type Street Paved Road Surface Type Paved Roof Shingle Spa YN No View Trees/Woods Water Access Yn No Water Extras Yn No Water View Yn No Waterfront Feet Total 0 Waterfront Yn No

Interior Features

Additional Rooms Den/Library/OfficeLoft Appliances Built-In OvenCooktopDishwasherDisposalGas Water HeaterMicrowaveRefrigeratorTankless Water Heater Building Area Total 3108 Cooling Central Air Cooling YN Yes Fireplace Yn No Flooring CarpetTile Furnished Unfurnished Heating CentralElectricHeat Pump Heating YN Yes Interior Features Eating Space In KitchenKitchen/Family Room ComboOpen FloorplanPest Guard SystemSplit BedroomStone CountersThermostatWalk-In Closet(s) Laundry Features InsideLaundry Room Levels Two Rooms Primary Bedroom (En Suite BathroomWalk-In Closet(s)) Dinette Great Room Primary Bathroom (Water Closet/Priv Toilet) Kitchen (Kitchen IslandStone CountersPantry) Laundry Balcony/Porch/Lanai (Other) Bedroom 2 (Built-in Closet) Bathroom 2 (Single VanityStone CountersTub With Shower) Den (No Closet) Bathroom 3 Bedroom 3 (Walk-In Closet(s)) Bedroom 4 (Walk-In Closet(s)) Loft Bathroom 4 Sewer Public Sewer Water Source Public Window Features Double Pane WindowsInsulated WindowsLow-Emissivity Windows

Property Features

Additional Lease Restrictions Please see association documents for details. Amenities Additional Fees $840 minimum annual food and beverage spending required (once clubhouse is complete). Please see association documents for more information. Association Amenities ClubhouseFitness CenterGatedOtherPickleball Court(s)PoolRecreation FacilitiesSpa/Hot TubTennis Court(s)Trail(s) Association Fee 384 Association Fee Frequency Monthly Association Fee Includes Community PoolInternetMaintenance StructureMaintenance GroundsManagerPool MaintenancePrivate RoadRecreational Facilities Association Fee Monthly Amount 384 Association Fee Requirement Required Association Yn Yes Builder Name Pulte Homes/Del Webb Cdd Yn Yes Community Features ClubhouseFitness CenterGated Community - GuardGolf Carts OKPoolRestaurantSidewalksTennis Court(s) Down Payment Resource No Flood Zone Code X Garage Yn Yes Green Energy Efficient HVACInsulationLightingRoofThermostatWater HeaterWindows Green Water Conservation Irrig. System-Drip/Microheads Homestead Yn No Lease Considered YN No Listing Terms CashConventionalVA Loan New Construction Yn Yes Number Of Pets 2 Ownership Fee Simple Pet Restrictions Please see association documents for details. Pet Size Small (16-35 Lbs.) Pets Allowed Number LimitSize LimitYes Property Attached YN No Property Condition Completed Property Sub Type Single Family Residence Realtor Info Brochure AvailableFloor Plan AvailableOwner Will Assist with closing costs Security Features Gated CommunitySecurity Gate Senior Community Yn Yes Special Listing Conditions None Tax Annual Amount 3137.59 Total Annual Fees 4608 Total Monthly Fees 384 Utilities BB/HS Internet AvailableElectricity ConnectedNatural Gas ConnectedPhone AvailablePublicSewer ConnectedUnderground UtilitiesWater Connected Zoning P-D


Listing information © 2025 My Florida Regional MLS DBA Stellar MLS..
Listing provided courtesy of PULTE REALTY OF NORTH FLORIDA LLC: 407-250-9131.



© 2025 My Florida Regional MLS DBA Stellar MLS. All rights reserved. All listings displayed pursuant to IDX. All listing information is deemed reliable but not guaranteed and should be independently verified through personal inspection by appropriate professionals. Listings displayed on this website may be subject to prior sale or removal from sale; availability of any listing should always be independently verified. Listing information is provided for consumers personal, non-commercial use, solely to identify potential properties for potential purchase; all other use is strictly prohibited and may violate relevant federal and state law. Data last updated 2025-12-12T23:44:25.307.
 
https://bt-photos.global.ssl.fastly.net/mfr/orig_boomver_2_O6362906-2.jpg https://bt-photos.global.ssl.fastly.net/mfr/orig_boomver_2_O6362906-2.jpg https://bt-photos.global.ssl.fastly.net/mfr/orig_boomver_2_O6362906-2.jpg
Logo
The Kilene Kelly Group | Keller Williams Suburban Tampa
2350 East SR 60, Suite #150
Valrico FL, 33594